AVAYA IP OFFICE广电呼叫中心应用方案
客户世界|AVAYA |2006-05-10
p>
p>
概述
随着数字多媒体的发展,其原有的服务模式已满足不了广电用户,对广电企业越来越高的各种服务请求,建立一种全新的服务模式,保证最大限度地满足客户的各种服务请求,在企业成立客户服务中心的同时,广电客服系统的建设已成为必然趋势。
客服信息系统主要具有用业务查询、投诉建议、故障处理、工单监控、主动外拨、统计报表
同时,随着电信及互联网技术的发展,多媒体呼叫中心建设势在必然。全媒体接入呼出子系统是呼叫中心系统的门户系统,直接接触客户,它将客户的不同形式的媒体服务申请接入系统,或将系统的反馈信息以不同的媒体形式回复给客户。
全媒体接入呼出子系统根据目前PSTN和互联网络的常用联络形式,提供全媒体接入和呼出方式,如普通电话、传真、网络电话、短信息、Email、WEB呼叫、即时消息、视频等,并且拥有可扩展的预留接口,可以根据技术的发展进行功能的升级,以保持系统的先进性和全面性。
AVAYA IP OFFICE的解决方案
思安华胜与合作伙伴北京大唐中联系统集成有限公司在积累大量广电行业客服系统建设成功经验的基础上,结合中国广电目前的实际情况和要求,以及客服系统未来的发展趋势,推出了在业界领先的基于IP的广电呼叫中心解决方案。方案以具有先进技术和高稳定性的呼叫中心平台为基础,竭力为广电业务运营商建立一个强大、开放、灵活的业务服务系统,更好地满足用户日益增长的对高质量服务的需求,保持广电企业在市场竞争中的优势。能充分满足电力系统的需要。
系统架构:
.jpg)
系统结构:
.jpg)
系统功能
- 排队系统
-空闲时间最长座席
-呼叫所有座席
-呼叫指定座席
-呼叫一个空闲座席 - 自动呼叫系统
-自动接听用户电话
-简单业务实现,如查询费用等
-呼叫转接,转接到人工座席、转接到外部电话
-主动外拨,费用催缴,主动通知等 - 语音信箱
-话务座席繁忙时采用
-为每个维护人员建立语音信箱
-不漏失审核用户请求 - 全程录音
-对全部话务员进行服务录音
-指导座席考评
-避免纠纷
系统业务功能
- 业务咨询
-广电业务知识咨询
-广电政策咨询 - 业务查询
-查询资费
-查询工单进展情况
-故障查询 - 投诉建议
-受理用户投诉和建议
-投诉建议派单
-工单处理
-工单回复
-工单证实
-结案 - 故障处理
-受理用户故障请求
-一般故障受理、处理、证实、结案
-特殊故障受理、处理、证实、结案 - 工单监控
-实时监控工单进展情况
-以明显标记各种工单状态
-提供给领导者使用 - 主动外拨
-欠费催缴,针对后付费
-预警通知,针对预付费
-包括语音和传真两种方式
-亲情通知
-人工外拨和自动外拨
-投诉及故障处理证实 - 统计报表
-故障受理情况报表
-投诉处理情况报表
-人工座席工作报表
系统功能-数字电视
- 数字电视业务
-数字电视入网
-数字电视迁移
-数字电视停机
-数字电视开机
-数字用户资料查询
-数字电视订购业务查询
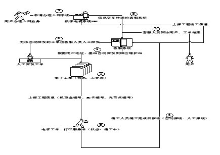
数字电视业务流图
数字电视实现流程
.jpg)
系统功能-模拟电视
- 模拟电视业务
-模拟电视新装
-模拟电视迁移
-模拟电视停机
-模拟电视开机
-模拟电视销户
-模拟电视增加终端
-模拟电视减少终端
-模拟用户资料查询
模拟电视业务流图

模拟电视实现流程

系统功能-CM
- CM业务
-客服中心接收到CM系统的开户请求,将信息纳入到工作流中,自动将该工作任务派发到约定的维护站。
–维护站工作人员接收到工作单,联系用户,确认用户详细安装地址,填写CM ID及光节点号。
系统功能-工作流
- 支撑业务流转的核心
- 支持自动流转和人工流转
- 针对工作流各个环节细致监控
- 业务增加便利
- 客服登记单
-未派单,已派未完,调查完成,处理完成 - 工单状态
-派发,接收,处理中,调查完成,处理完成 - 责任工区
- 登记单处理时限, 工单处理时限
- 工单处理标准原因
- Web方式派单, 回单
系统特点
- 应用软件分成比较独立的支撑平台和业务平台,实现CallCenter支撑功能和承载业务功能的分离;便于业务的扩充和第三方业务的集成;
- 系统架构伸缩性大,既可采用瘦客户端、应用服务器和数据库服务器三层结构来实现,便于应用的部署和维护;也可以采用传统的C/S结构;
- 采用应用服务器,同时支持负载均衡和失败接管多种机制,保证系统的性能和可靠性;
-独特的工作流管理系统; - 提供业务生成环境,用户可以方便地定制新的业务和流程;
- 提供灵活独立的报表系统;
责编:admin
转载请注明来源:AVAYA IP OFFICE广电呼叫中心应用方案
相关文章
- 2019第十五届”金耳唛杯”评审团在南昌市政公用集团客服热线入户评审
- 四维图新与杰发科技强强联手,普强信息在其中扮演什么样的角色?
- 国家首个语义库标准——智能客服语义库标准启动
- 96110民意通呼叫中心开通 首日接到1021条报料
- 宜兴搭建12345平台提升公用事业服务水平
- 知识管理在客户关系管理中的应用探析
- 正解云计算呼叫中心
- 软件复用的CRM系统的柔性化设计研究











